Torrevieja · Playa de El Cura Wohnung · Neue Gebäude · #NB-37620

Torrevieja · Playa de El Cura Wohnung · Neue Gebäude · #NB-37620

  • Meter
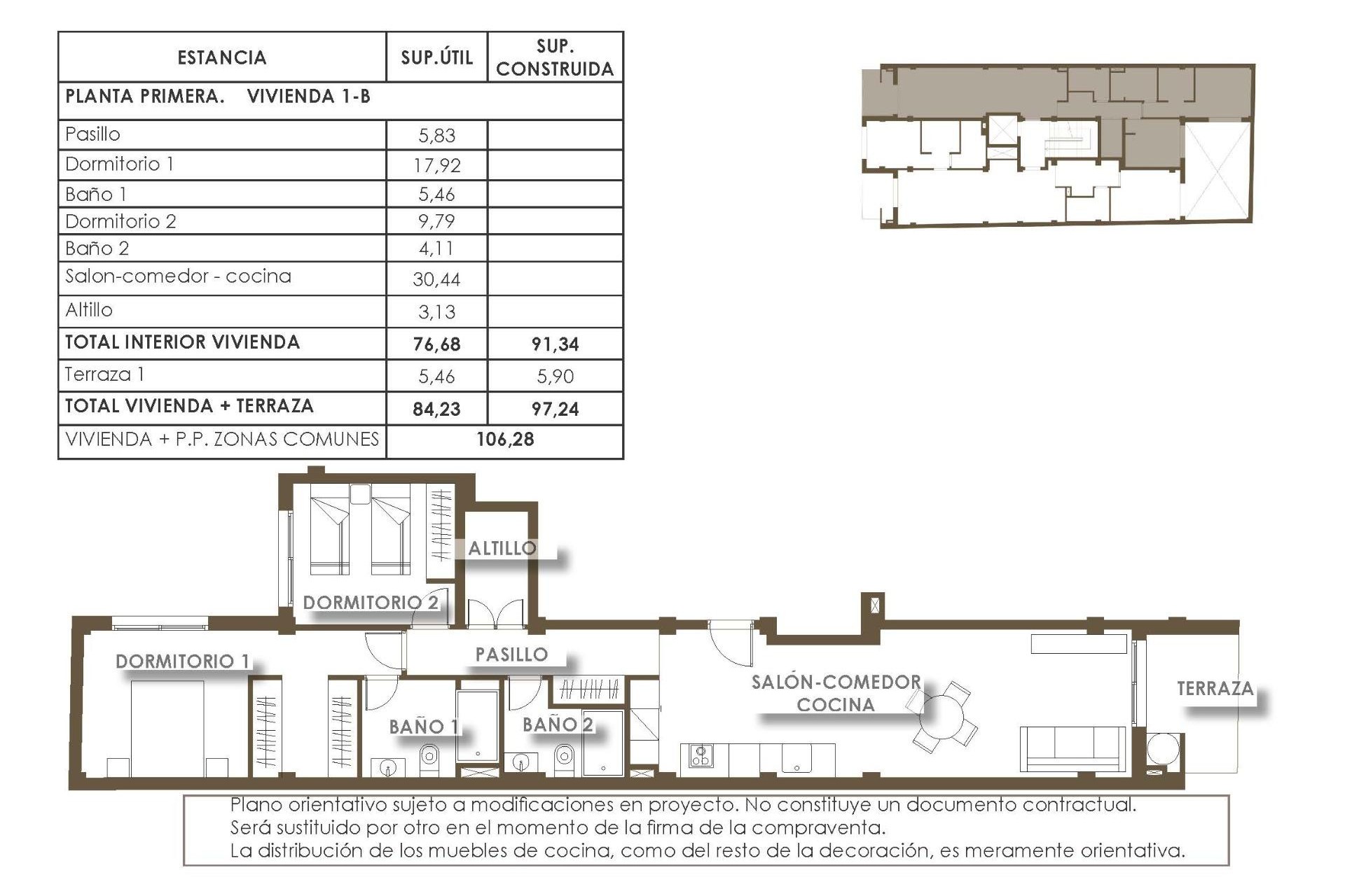
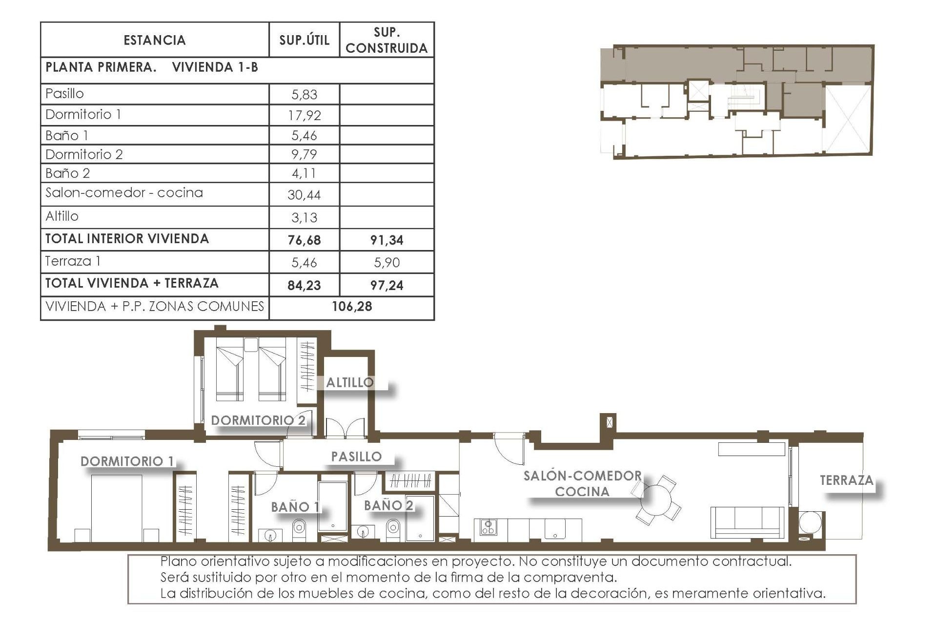
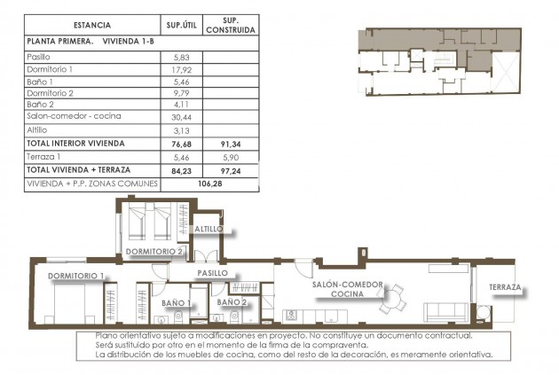
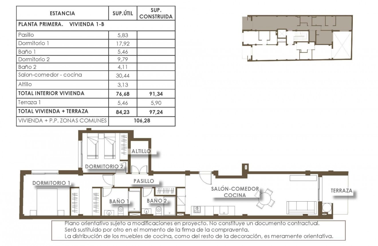
    91m2
  • Schlafzimmer
    2
  • Das Badezimmer
    2
  • Schwimmbad
    Ja

Beschreibung

Charakteristik

Schlafzimmer: 2
Das Badezimmer: 2
Gebaut: 91m2
Schwimmbad: Ja
Nennleistung: B
Gated
Near Schools
Near Commercial Center
Location: Coastal
Air Conditioning: Pre-Installed
Elevator/Lift
Communal Pool
Near Bus Route
Double Bedrooms: 2
Near Childrens Parks
Terrace: 5 Msq.
Space
Beach: 150 Meters
Useable Build Space: 76 Msq.

Ort

JJ Properties Logo

Nach Informationen fragen

Responsable del tratamiento: Jose Joaquín García López, Finalidad del tratamiento: Gestión y control de los servicios ofrecidos a través de la página Web de Servicios inmobiliarios, Envío de información a traves de newsletter y otros, Legitimación: Por consentimiento, Destinatarios: No se cederan los datos, salvo para elaborar contabilidad, Derechos de las personas interesadas: Acceder, rectificar y suprimir los datos, solicitar la portabilidad de los mismos, oponerse altratamiento y solicitar la limitación de éste, Procedencia de los datos: El Propio interesado, Información Adicional: Puede consultarse la información adicional y detallada sobre protección de datos Aquí.

Alle Eigenschaften

WhatsApp