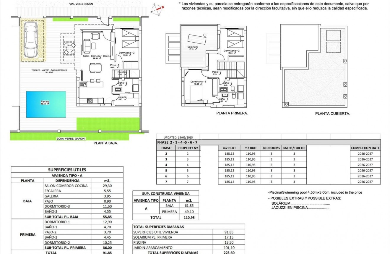
Moderne Neubauvillen in La Herrada Los Montesinos mit privatem Pool Exklusives Wohnprojekt in ruhiger Umgebung Diese exklusive Wohnanlage mit 16 modernen Villen befindet sich in der prestigeträchtigen Urbanisation La Herrada in Los Montesinos und bietet Privatsphäre, Komfort und eine ausgezeichnete Lebensqualität. La Herrada ist bekannt für seine ruhige Wohnatmosphäre, die Nähe zu allen Dienstleistungen des täglichen Bedarfs und seine privilegierte Lage zwischen den berühmten Salzseen von Torrevieja und La Mata. Es ist ein idealer Ort für diejenigen, die einen entspannten und gesunden mediterranen Lebensstil im Süden der Costa Blanca suchen. Zeitgenössisches Design mit optimierten Innenräumen Jede Villa verfügt über 110 m² gut geplante Wohnfläche, die sich auf zwei Etagen verteilt und so gestaltet ist, dass sie natürliches Licht und Funktionalität maximiert. Die Immobilien wurden auf Grundstücken ab 185 m² erbaut und bieten großzügige Außenbereiche, die sich perfekt zum Sonnenbaden, Unterhalten oder Entspannen am privaten Pool eignen. Komfortable Aufteilung auf zwei Etagen Das Erdgeschoss verfügt über ein offenes Wohnzimmer mit einer voll integrierten Küche und direktem Zugang zum Garten und Poolbereich. Auf dieser Ebene befinden sich außerdem ein Schlafzimmer, ein komplettes Badezimmer und ein praktischer Waschraum. Im Obergeschoss befinden sich zwei geräumige Schlafzimmer, jedes mit eigenem Badezimmer, eines davon en suite. Beide Schlafzimmer haben Zugang zu einer privaten offenen Terrasse von 17 m². Für diejenigen, die noch mehr Platz im Freien wünschen, gibt es gegen Aufpreis ein optionales Solarium auf dem Dach. Hochwertige Ausstattung und moderne Merkmale Die Villen verfügen über eine hochwertige Ausstattung wie Badezimmermöbel, Spiegel, Duschwände und Fußbodenheizung in allen Badezimmern. Es gibt eine Vorinstallation für eine Klimaanlage, ein motorisiertes Eingangstor für Fahrzeuge, einen privaten Parkplatz auf dem Grundstück und einen geschlossenen Zugang zur Wohnanlage über eine private interne Straße. Erstklassige Lage in der Nähe wichtiger Annehmlichkeiten und Sehenswürdigkeiten Strände von Guardamar und Torrevieja 9 km La Marquesa Golf, La Finca Golf und Vistabella Golf innerhalb von 5 km Flughafen Alicante 29 km Naturparks, Salzseen, Radwege und Wanderwege in der Nähe Komfortables Wohnen im Herzen der Costa Blanca Diese neu gebauten Villen in Los Montesinos bieten die perfekte Kombination aus modernem Komfort, natürlicher Umgebung und ausgezeichneter Erreichbarkeit. Ob Sie einen dauerhaften Wohnsitz oder ein Ferienhaus suchen, diese Wohnanlage bietet Ihnen alles, was Sie für einen ruhigen und komfortablen mediterranen Lebensstil benötigen. Kontaktieren Sie uns noch heute, um einen Besichtigungstermin zu vereinbaren und sich Ihr neues Zuhause in La Herrada zu sichern. 270