Aspe · Poligono 19 Villa · Obra nueva · #NB-73295

Aspe · Poligono 19 Villa · Obra nueva · #NB-73295

  • Metros
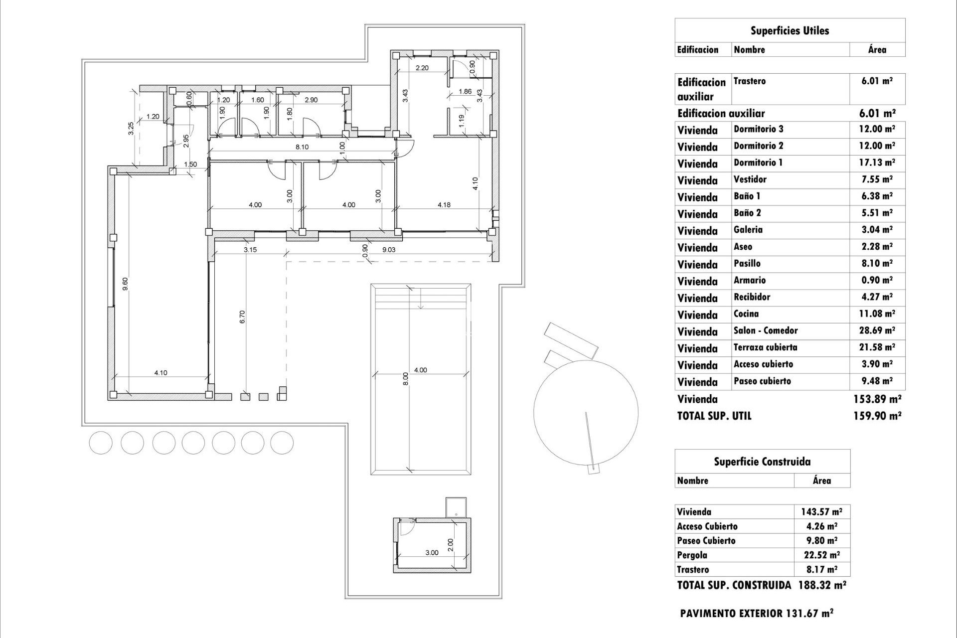
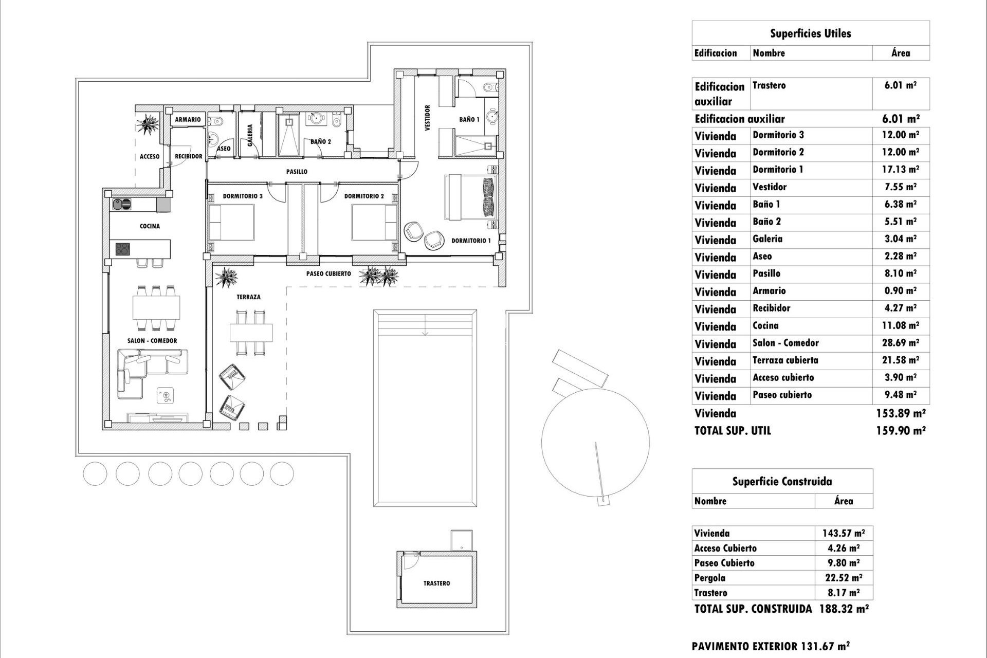
    188m2
  • Terreno
    13.172m2
  • Habitaciones
    3
  • Baños
    3
  • Piscina

Descripción

Características

Habitaciones: 3
Baños: 3
Construidos: 188m2
Parcela: 13.172m2
Piscina:
Calificación energética: B
Terrace: 36 Msq.
Useable Build Space: 159 Msq.
Storage / Trastero
Piscina privada
Garden
Gated
Number of Parking Spaces: 1
Near Schools
Air Conditioning: Pre-Installed
Double Bedrooms: 3
Parking - Space
Beach: 25000 Meters
Location: Rural, Mountain

Localización

JJ Properties Logo

Pedir información

Responsable del tratamiento: Jose Joaquín García López, Finalidad del tratamiento: Gestión y control de los servicios ofrecidos a través de la página Web de Servicios inmobiliarios, Envío de información a traves de newsletter y otros, Legitimación: Por consentimiento, Destinatarios: No se cederan los datos, salvo para elaborar contabilidad, Derechos de las personas interesadas: Acceder, rectificar y suprimir los datos, solicitar la portabilidad de los mismos, oponerse altratamiento y solicitar la limitación de éste, Procedencia de los datos: El Propio interesado, Información Adicional: Puede consultarse la información adicional y detallada sobre protección de datos Aquí.

Ver todas las propiedades

WhatsApp