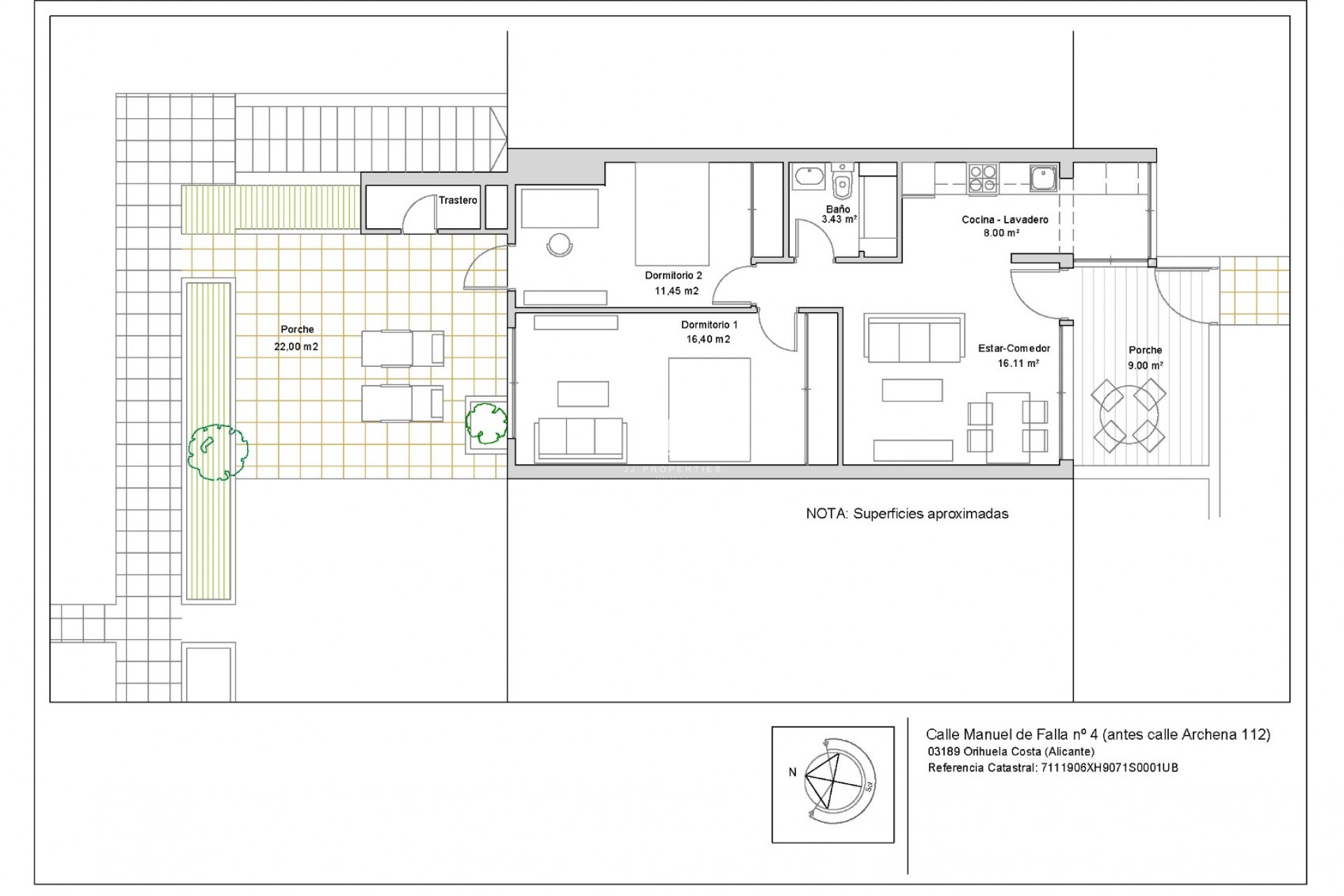
Este encantador bungalow en planta baja en Villamartín ofrece un estilo de vida mediterráneo en una de las zonas más cómodas y consolidadas de Orihuela Costa. Ubicado en la Calle Manuel de Falla, destaca por su luminosidad, su reciente reforma integral y sus agradables espacios exteriores para disfrutar del clima durante todo el año. La vivienda, completamente renovada, cuenta con 2 dormitorios con armarios empotrados, 1 baño moderno con plato de ducha y mampara, suelo laminado imitación madera y una cocina a estrenar equipada con electrodomésticos, incluyendo lavadora y lavavajillas. Además, dispone de un práctico armario trastero exterior. En el exterior encontramos un porche delantero con toldo y una amplia terraza trasera perfecta para relajarse o compartir momentos al aire libre, todo ello rodeado de cuidados jardines comunitarios. La ubicación es excelente: a pocos minutos a pie del Centro Comercial La Rioja, del supermercado Dialprix y del Micaela Bar Restaurante con piscina, además de campos de golf, Villamartín Plaza, Zenia Boulevard y las playas de Orihuela Costa.