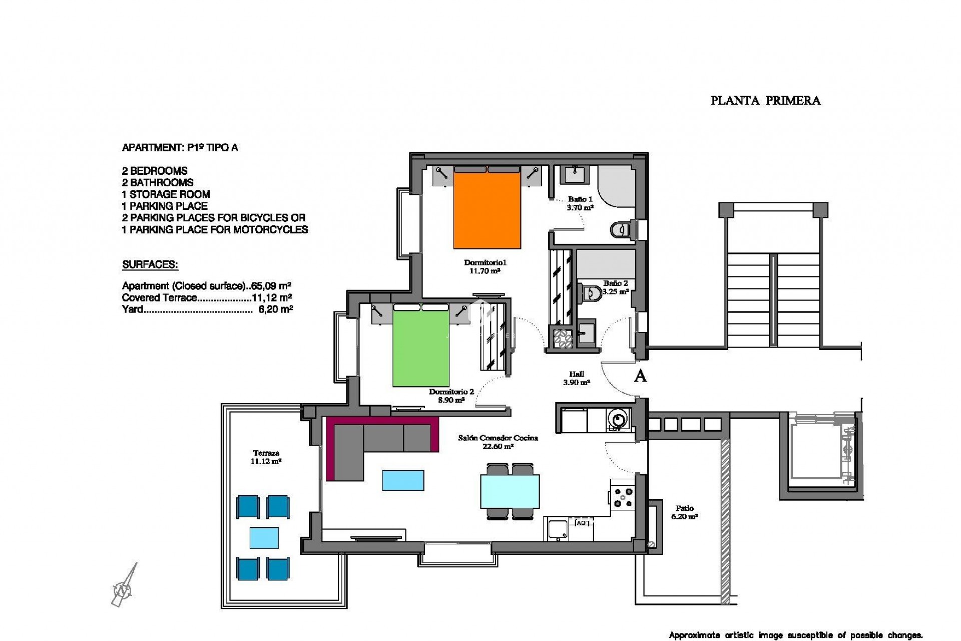
Magnífico apartamento entre el mar y el golf! Coqueto apartamento con 2 dormitorios y 2 baños La residencia está situada en una zona tranquila y segura y está totalmente equipada (dispone de todas las comodidades posibles). En las inmediaciones encontrará por ejemplo 4 magníficos campos de golf, una gran zona comercial (la Zenia Boulevard), varias playas, supermercados, bares y restaurantes, etc. Es una residencia de lujo, todos los apartamentos y casas son espaciosos y confortables. La residencia dispone de aparcamiento privado y está equipada con ascensores. En el complejo hay una piscina comunitaria (gran piscina, piscina infantil y jacuzzi con agua caliente). También un parque infantil y varios espacios verdes. En resumen: el lugar ideal para descansar y disfrutar de la región, para vivir en España. 270
Esta información que se proporciona aquí está sujeta a errores y no forma parte de ningún contrato. La oferta se puede cambiar o retirar sin previo aviso. Los precios no incluyen los costes de compra
Teléfono
Móvil
©JJ Properties. Reservados todos los derechos · Nota legal · Privacidad · Cookies · Mapa Web· Canal de denuncias
CRM & Web design: Mediaelx
En primer lugar, gracias por contactarnos.
Hemos recibido su solicitud con respecto a la referencia de propiedad:NB-13237. Uno de nuestros agentes se pondrá en contacto con usted lo antes posible.
En primer lugar, gracias por contactarnos.
Hemos recibido una solicitud de informe si baja el precio de la propiedad con la referencia: NB-13237
Mientras tanto, eche un vistazo a esta selección de propiedades similares que podrían ser de su interés: