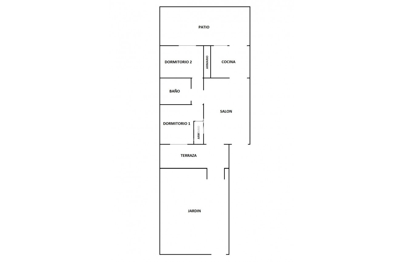
À vendre : bungalow de 2 chambres avec parcelle pavée de 36 m² comprenant un jardin subtropical avec des canaris, situé dans une copropriété avec piscine et parking. Le bungalow se trouve dans le quartier de Lomas Cabo Roig, rue Castillo del Río, Orihuela Costa, province d’Alicante, Espagne. Un endroit calme et pittoresque avec vue sur le parc et la mer. À proximité : supermarché anglais Iceland, cafés et petites boutiques. Le bungalow dispose de 75 m² construits, d’une parcelle de 36 m² avec jardin, d’un patio buanderie intérieur de 19 m² et d’une terrasse d’entrée de 15 m². Construit en 2005. Composition : salon avec cuisine indépendante et patio, 2 chambres séparées et une salle de bain complète. À vendre en excellent état, sans besoin de travaux, avec meubles et électroménagers
Cette information donnée ici est sujette à des erreurs et ne fait partie d'aucun contrat. L'offre peut être modifiée ou retirée sans préavis. Les prix n'incluent pas les coûts d'achat
Téléphone
Mobile
©JJ Properties. Tous droits réservés · Mentions légales · Intimité · Cookies · Plan du site· Canal de dénonciation
CRM & Web design: Mediaelx
Tout d’abord, merci de nous contacter.
Nous avons reçu votre demande concernant la référence du bien:C-46557. Un de nos agents vous contactera dans les meilleurs délais.
Tout d’abord, merci de nous contacter.
Nous avons reçu une demande de rapport si vous abaissez le prix de la propriété avec la référence: C-46557
En attendant, jetez un œil à cette sélection de propriétés similaires qui pourraient vous intéresser: