San Miguel de Salinas · Pueblo Appartement · Nouvelle construction · #NB-86974

San Miguel de Salinas · Pueblo Appartement · Nouvelle construction · #NB-86974

  • Mètres
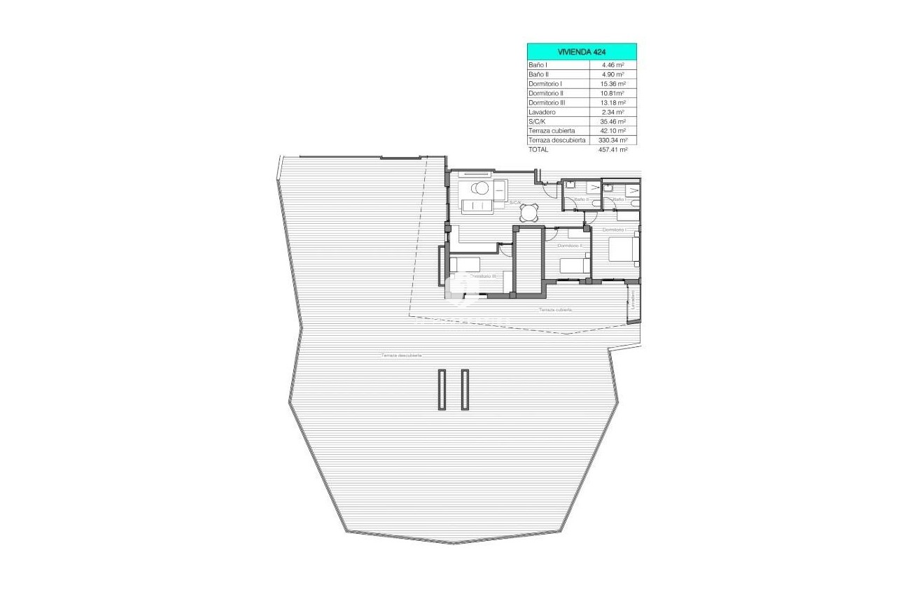
    86m2
  • Chambres
    3
  • Salles de bain
    2
  • Piscine
    Oui

La description

Les caractéristiques

Chambres: 3
Salles de bain: 2
Construit: 86m2
Piscine: Oui
Énergie: X
Location: Coastal, Urbanisation
Key Ready
Useable Build Space: 72 Msq.
Beach: 10000 Meters
Parking - Space
Terrace: 372 Msq.
Gated
Number of Parking Spaces: 1
Near Golf / Golf Resort Property
Near Schools
Near Commercial Center
Air Conditioning: Pre-Installed
Double Bedrooms: 3
Communal Pool

Emplacement

JJ Properties Logo

Demander information

Responsable del tratamiento: Jose Joaquín García López, Finalidad del tratamiento: Gestión y control de los servicios ofrecidos a través de la página Web de Servicios inmobiliarios, Envío de información a traves de newsletter y otros, Legitimación: Por consentimiento, Destinatarios: No se cederan los datos, salvo para elaborar contabilidad, Derechos de las personas interesadas: Acceder, rectificar y suprimir los datos, solicitar la portabilidad de los mismos, oponerse altratamiento y solicitar la limitación de éste, Procedencia de los datos: El Propio interesado, Información Adicional: Puede consultarse la información adicional y detallada sobre protección de datos Aquí.

Voir toutes les propriétés

WhatsApp