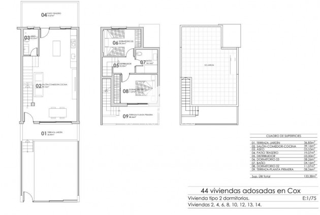
Nieuwbouwwoningen te koop in Cox - 44 moderne woningen met geweldige voorzieningen Ontdek een nieuwbouwproject van 44 moderne stadswoningen in Cox, Alicante. Deze woningen zijn beschikbaar in 2- en 3-slaapkamer lay-outs, elk met een eigen solarium, terrassen, patio's en een eigen parkeerplaats. De gemeenschap biedt toegang tot gemeenschappelijke ruimten, waaronder een gemeenschappelijk zwembad, wat een ideale omgeving creëert om te ontspannen. Toplocatie met uitstekende verbindingen Dit project ligt op slechts 40 km van Alicante International Airport, waardoor reizen eenvoudig en gemakkelijk is. Cox heeft goede verbindingen met de grote steden: Orihuela ligt op slechts 8 km, Elche op 20 km, Alicante op 48 km en Murcia op 25 km. Golfliefhebbers zullen de nabijgelegen golfbanen waarderen, zoals La Finca (12 km) en Vistabella (14 km). Gemakkelijke toegang tot belangrijke wegen Cox biedt gemakkelijke toegang tot de snelweg AP-7 en de Autovía del Mediterráneo (A-7), evenals lokale routes naar omliggende gebieden zoals Granja de Rocamora en Callosa de Segura. De stad en de omliggende gebieden hebben meer dan 35.000 inwoners en bieden een rustige maar levendige levensstijl. Lokale voorzieningen en attracties Bewoners zullen genieten van een breed scala aan lokale voorzieningen, waaronder winkels, scholen, sportfaciliteiten, medische centra, en snelle toegang tot de stranden van de Costa Blanca, zoals Guardamar del Segura en Torrevieja. Inbegrepen functies Elke woning wordt geleverd met een aangelegde tuin, LED-verlichting, elektrische rolluiken, zonnepanelen pre-installatie, ingebouwde kasten, een beveiligde deur, een volledig uitgeruste keuken met Silestone werkbladen, en nog veel meer. 270