San Fulgencio · Pueblo Bungalow · Nieuwbouw Woningen · #NB-66100

316.900€

San Fulgencio · Pueblo Bungalow · Nieuwbouw Woningen · #NB-66100

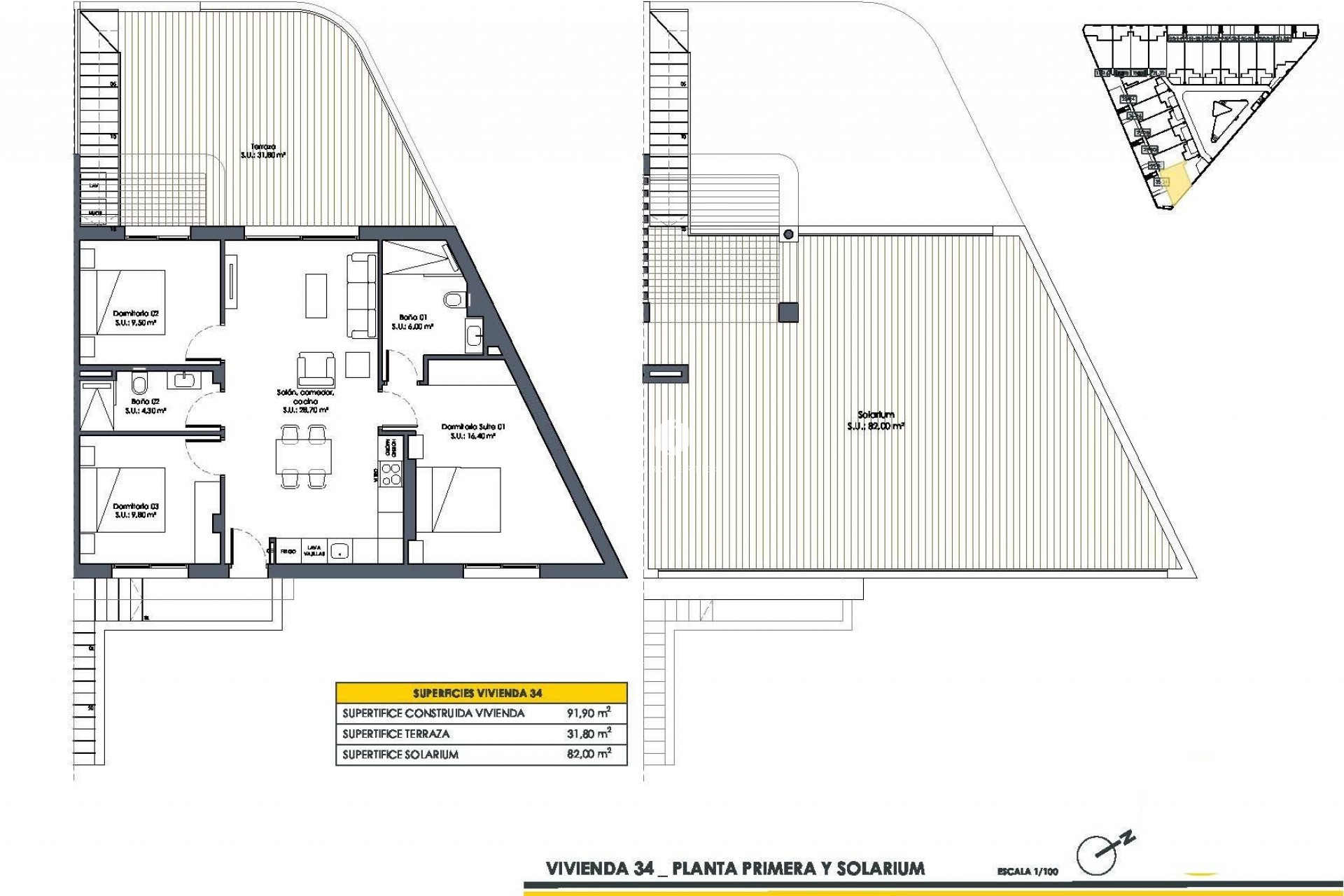
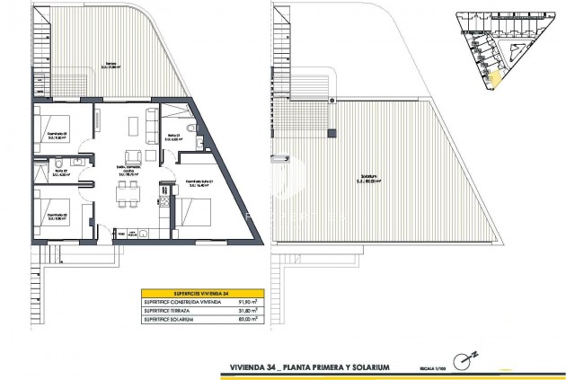
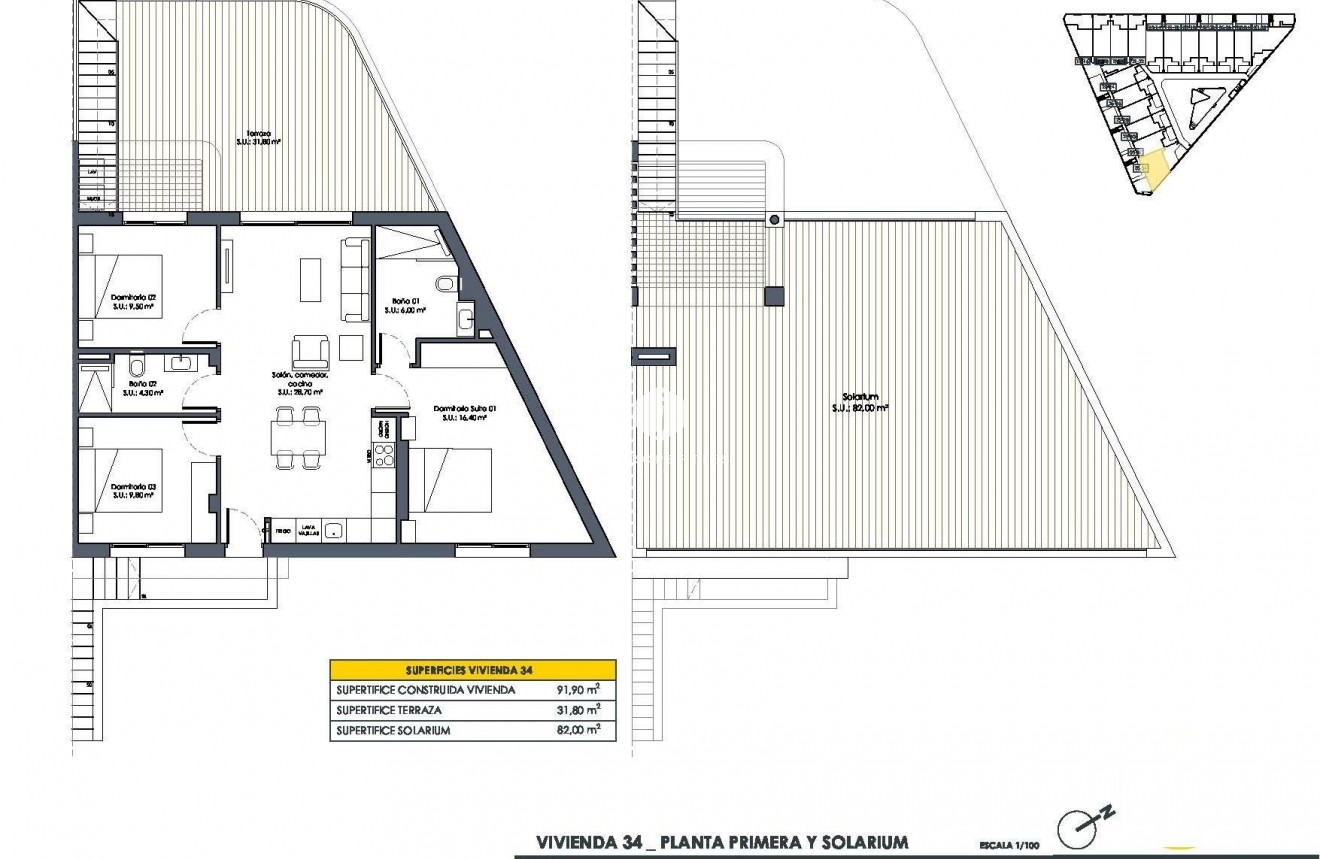
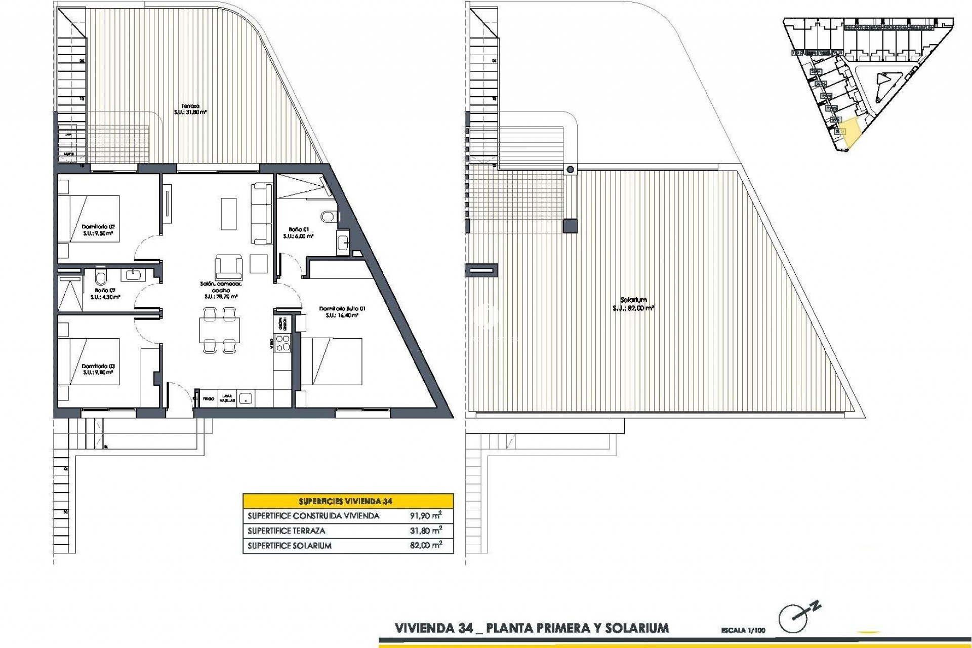
  • 92m2
  • Slaapkamers
    3
  • Badkamers
    2
  • Zwembad
    Ja

Beschrijving

Kenmerken

Slaapkamers: 3
Badkamers: 2
Gebouwd: 92m2
Zwembad: Ja
Energy Rating: B
Gated
Solarium: Yes
Number of Parking Spaces: 1
Beach: 7000 Meters
Near Schools
Air Conditioning: Pre-Installed
Double Bedrooms: 3
Communal Pool
Location: Rural, Urbanisation
Terrace: 114 Msq.
Useable Build Space: 85 Msq.
Parking - Space

Plaats

JJ Properties Logo

Vraag voor informatie

Responsable del tratamiento: Jose Joaquín García López, Finalidad del tratamiento: Gestión y control de los servicios ofrecidos a través de la página Web de Servicios inmobiliarios, Envío de información a traves de newsletter y otros, Legitimación: Por consentimiento, Destinatarios: No se cederan los datos, salvo para elaborar contabilidad, Derechos de las personas interesadas: Acceder, rectificar y suprimir los datos, solicitar la portabilidad de los mismos, oponerse altratamiento y solicitar la limitación de éste, Procedencia de los datos: El Propio interesado, Información Adicional: Puede consultarse la información adicional y detallada sobre protección de datos Aquí.

Bekijk alle woningen

WhatsApp