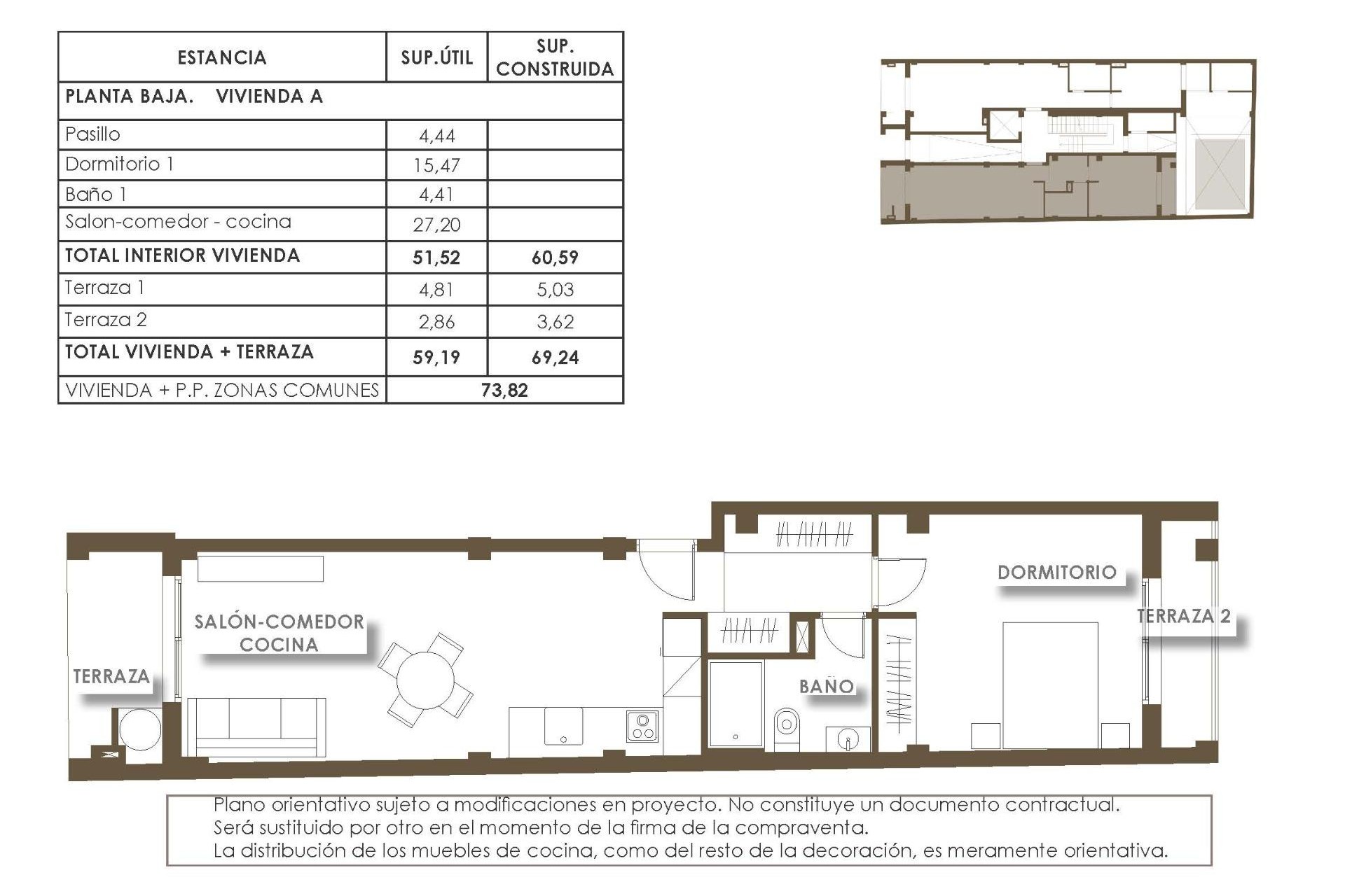
Moderne nieuwbouwappartementen in het hart van Torrevieja Toplocatie op slechts 150 m van de zee Dit uitzonderlijke nieuwe project ligt in het centrum van Torrevieja, op slechts 150 m van de natuurlijke zwembaden en de boulevard, en op slechts 500 m van Playa del Cura. Omgeven door een uitgebreid aanbod aan voorzieningen, waaronder winkels, supermarkten, parken, cafés en restaurants, biedt de omgeving alles wat u nodig heeft op loopafstand. De combinatie van stedelijk gemak en kustrust maakt het tot een van de meest aantrekkelijke woonwijken van de stad. Moderne appartementen met 1 en 2 slaapkamers Het project biedt moderne appartementen met 1 of 2 slaapkamers en 1 of 2 badkamers, waaronder twee exclusieve penthouses met privéterras, barbecue en privézwembad. Alle woningen zijn ontworpen met een open indeling die het natuurlijke licht maximaliseert, met ruime terrassen en stijlvolle Amerikaanse keukens. Elk appartement beschikt over een volledig uitgeruste keuken met apparatuur, complete badkamers met meubilair, doucheschermen en vloerverwarming, evenals binnenverlichting. Er is ook een voorinstallatie voor airconditioning, zodat u het hele jaar door kunt genieten van comfort. Aantrekkelijke gemeenschappelijke ruimtes om te ontspannen Bewoners kunnen genieten van uitstekende gemeenschappelijke faciliteiten die zijn ontworpen voor welzijn en ontspanning. Op de begane grond vindt u een verfrissend gemeenschappelijk zwembad en een ontspannende sauna. Het dakterras biedt een gedeeld solarium, ideaal om te zonnebaden en te genieten van de mediterrane sfeer. Geniet van een unieke kust- en natuurlijke omgeving Torrevieja staat bekend om zijn milde mediterrane klimaat, met een gemiddelde jaartemperatuur van 20 ºC, perfect om het hele jaar door te wonen. De stad is de thuisbasis van de beroemde zoutmeren en het beschermde natuurpark La Mata en Torrevieja, gelegen op slechts 4 km van het project. Met zijn levendige roze en groene lagunes, schilderachtige wandelroutes en diverse fauna biedt het een gezonde en inspirerende natuurlijke omgeving. Afstanden tot belangrijke bezienswaardigheden Puerto Deportivo de Torrevieja 1 km Parque Natural de La Mata 4 km Villamartin Golf 8 km Luchthaven Alicante 45 km Luchthaven Murcia 60 km Leef de mediterrane levensstijl Verzeker uzelf van een moderne woning in een van de meest gewilde kuststeden aan de Costa Blanca. Neem vandaag nog contact met ons op om een bezichtiging in te plannen en uw plek in dit uitstekende nieuwe project te reserveren. 270