Orihuela Costa · Lomas de Cabo Roig Appartement / flat · Nieuwbouw Woningen · #NB-12399

240.500€

Orihuela Costa · Lomas de Cabo Roig Appartement / flat · Nieuwbouw Woningen · #NB-12399

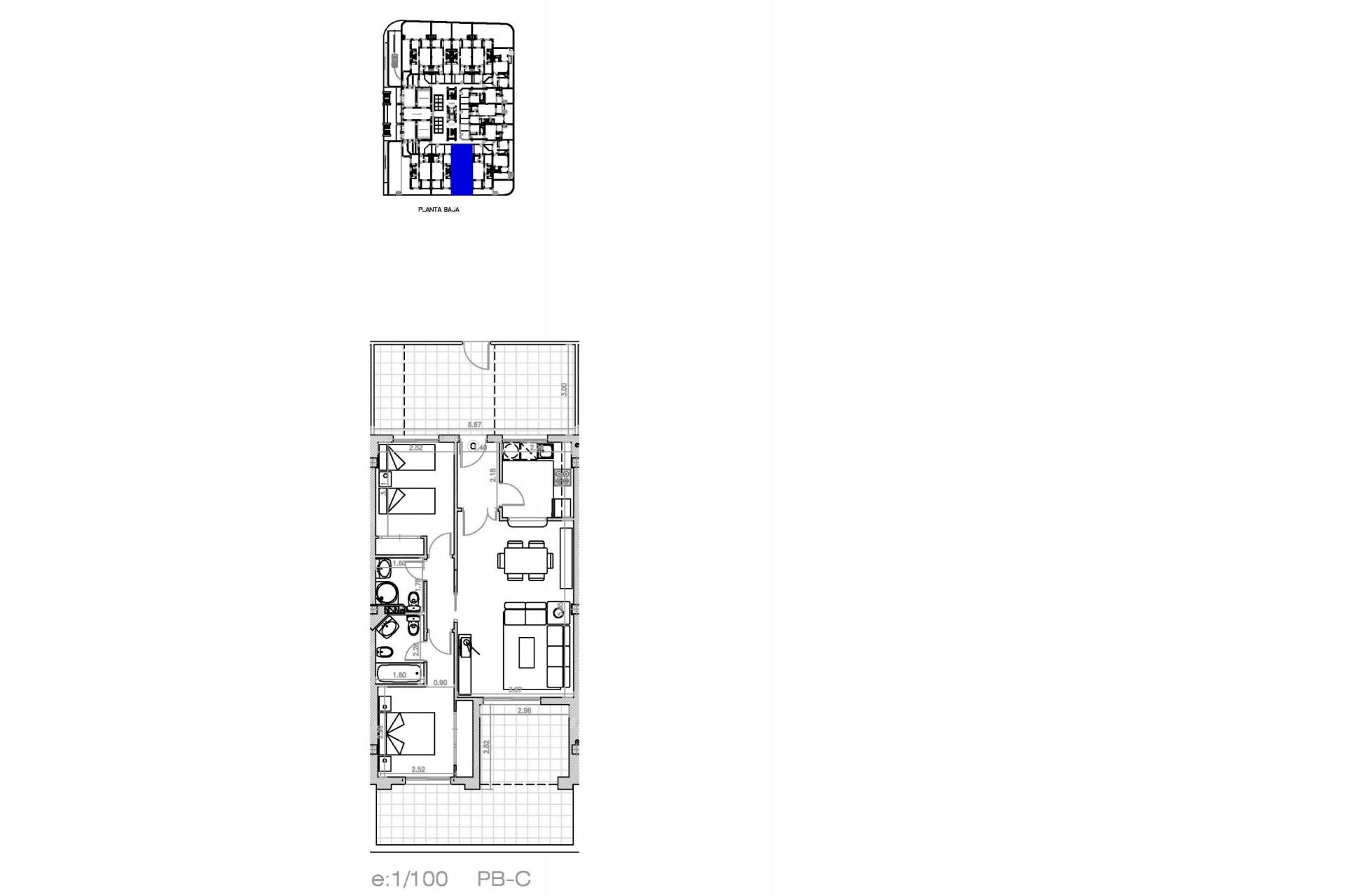
  • 69m2
  • Slaapkamers
    2
  • Badkamers
    2
  • Zwembad
    Ja

Beschrijving

Kenmerken

Slaapkamers: 2
Badkamers: 2
Gebouwd: 69m2
Zwembad: Ja
Energy Rating: F
Gated
Near Schools
Near Commercial Center
Elevator/Lift
Communal Pool
Beach: 2000 Meters
Location: Coastal, Urbanisation
Double Bedrooms: 2
Near Trees
Useable Build Space: 60 Msq.
Parking - Space
Terrace: 51 Msq.

Plaats

JJ Properties Logo

Vraag voor informatie

Responsable del tratamiento: Jose Joaquín García López, Finalidad del tratamiento: Gestión y control de los servicios ofrecidos a través de la página Web de Servicios inmobiliarios, Envío de información a traves de newsletter y otros, Legitimación: Por consentimiento, Destinatarios: No se cederan los datos, salvo para elaborar contabilidad, Derechos de las personas interesadas: Acceder, rectificar y suprimir los datos, solicitar la portabilidad de los mismos, oponerse altratamiento y solicitar la limitación de éste, Procedencia de los datos: El Propio interesado, Información Adicional: Puede consultarse la información adicional y detallada sobre protección de datos Aquí.

Bekijk alle woningen

WhatsApp