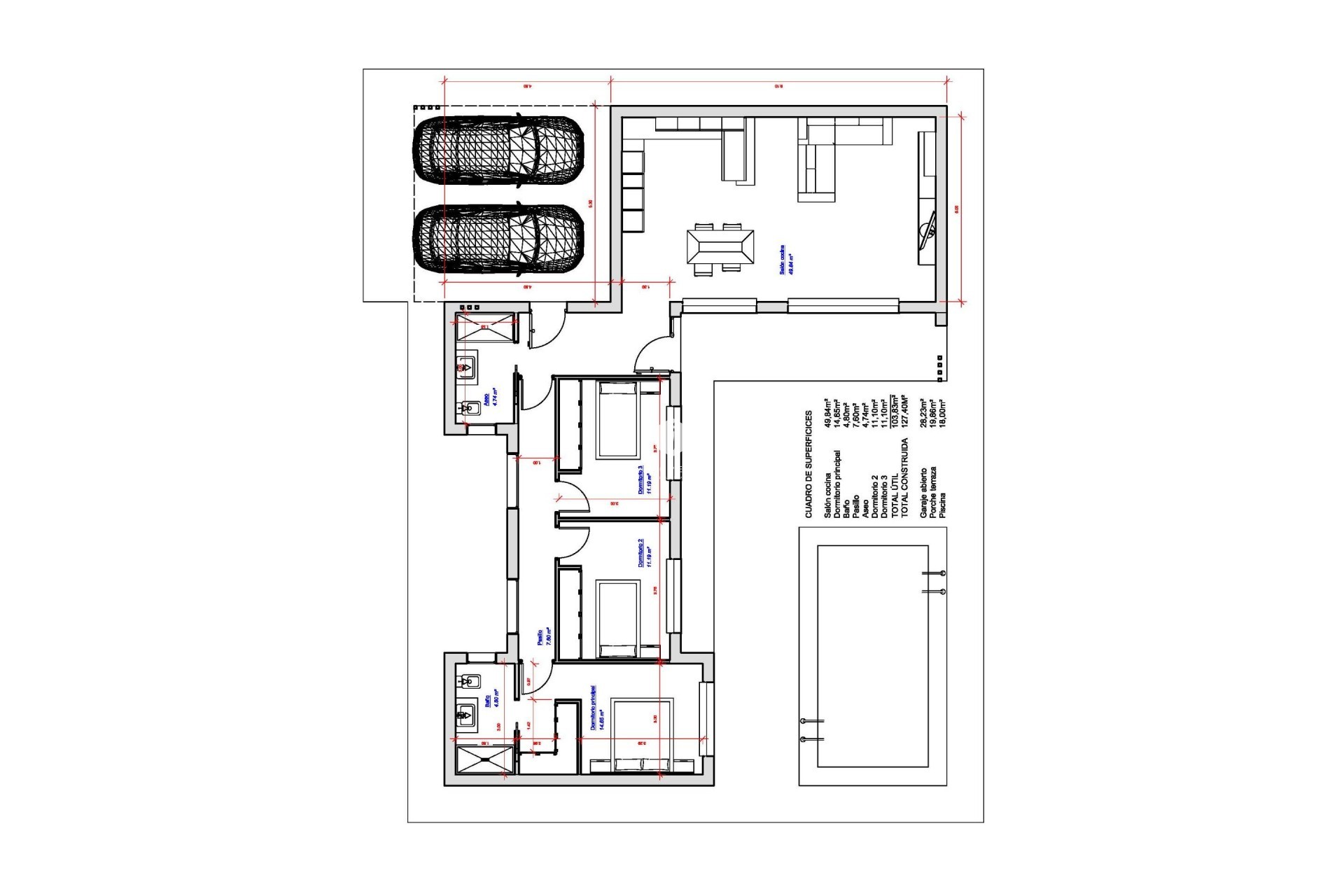
Moderne nieuwbouwwoning op een groot rustiek perceel in Pinoso Eigentijds wonen in een rustige landelijke omgeving Ontdek deze stijlvolle nieuwbouwwoning op een ruim rustiek perceel van 10.700 m2 aan de rand van Pinoso, Alicante. Deze moderne woning is ontworpen voor mensen die op zoek zijn naar privacy, rust en een nauwe band met de natuur, en combineert eigentijdse architectuur met de charme van het Spaanse platteland. Omgeven door wijngaarden, amandel- en olijfboomgaarden biedt het pand een serene levensstijl op slechts een klein eindje rijden van alle lokale voorzieningen. Ruime gelijkvloerse villa met privézwembad De villa is gelijkvloers en beschikt over 3 slaapkamers en 2 badkamers, waarvan één en suite. De open indeling volgt een L-vormig ontwerp, waardoor de woonruimte gescheiden is van de slaapvertrekken voor extra comfort en privacy. De dagruimte heeft hoge plafonds die het gevoel van ruimte versterken en het interieur met natuurlijk licht overspoelen. Buiten kunt u genieten van een privéterras en een zwembad, perfect om te ontspannen en te entertainen onder de mediterrane zon. De woning beschikt ook over een overdekte parkeerplaats voor twee auto's, allemaal gelegen op een groot rustiek perceel dat eindeloze mogelijkheden biedt voor tuinieren, recreatie of gewoon om te genieten van het uitzicht. Moderne voorzieningen en hoogwaardige afwerking Deze nieuwbouwwoning is uitgerust met airconditioning voor comfort het hele jaar door. De keuken is volledig ingericht en voorzien van apparatuur, waardoor het een functionele en elegante ruimte is voor het dagelijks leven. Het moderne ontwerp, gecombineerd met hoogwaardige materialen, zorgt voor een comfortabele en onderhoudsvriendelijke woning, ideaal voor permanent wonen of als vakantiehuis op het platteland. Locatie nabij Pinoso De woning ligt net buiten het stadje Pinoso, een charmant dorpje in het binnenland met minder dan 8000 inwoners. Pinoso staat bekend om zijn ontspannen levensritme en authentieke Spaanse sfeer en biedt een breed scala aan voorzieningen, waaronder bars, restaurants, winkels, een 24-uurs medisch centrum, tandartsen, basisscholen en middelbare scholen, een theater en een modern sportcomplex met buitenzwembaden, tennisbanen, voetbalvelden en een fitnessruimte. Het centrum van Pinoso ligt op ongeveer 3 km afstand. De stad Alicante ligt op ongeveer 55 km afstand, terwijl de witte zandstranden van de Costa Blanca op ongeveer 50 km afstand liggen. De internationale luchthaven van Alicante ligt op ongeveer 60 km van het pand. De regio ligt ook dicht bij de grens met Murcia, wat nog meer verbindingsmogelijkheden en levensstijlopties biedt. Een authentieke Spaanse levensstijl omgeven door natuur Wonen in Pinoso betekent genieten van een traditionele landelijke levensstijl met bijna geen verkeer, open landschappen en een sterk gemeenschapsgevoel. In februari komt het omliggende platteland tot leven met bloeiende amandelbomen, wat een spectaculair natuurspektakel oplevert. Uw droomhuis op het platteland wacht op u Deze moderne nieuwbouwwoning in Pinoso biedt de perfecte balans tussen hedendaags comfort en een rustig leven op het platteland. Neem vandaag nog contact met ons op voor meer informatie of om een bezichtiging te regelen en zet de eerste stap naar uw nieuwe huis op het Spaanse platteland. 270
Deze informatie is hier onderhevig aan fouten en maakt geen deel uit van een contract. De aanbieding kan zonder kennisgeving worden gewijzigd of ingetrokken. Prijzen zijn exclusief aankoopkosten.
Telefoon
Mobiel
Allereerst bedankt dat je contact met ons hebt opgenomen.
We hebben uw verzoek met betrekking tot de eigenschap referentie ontvangen:NB-58752. Een van onze agenten neemt zo snel mogelijk contact met u op.
Allereerst bedankt dat je contact met ons hebt opgenomen.
We hebben een aanvraag voor een rapport ontvangen als u de prijs van het onroerend goed met de referentie verlaagt: NB-58752
Bekijk in de tussentijd eens een selectie van vergelijkbare woningen die voor u van belang kunnen zijn: