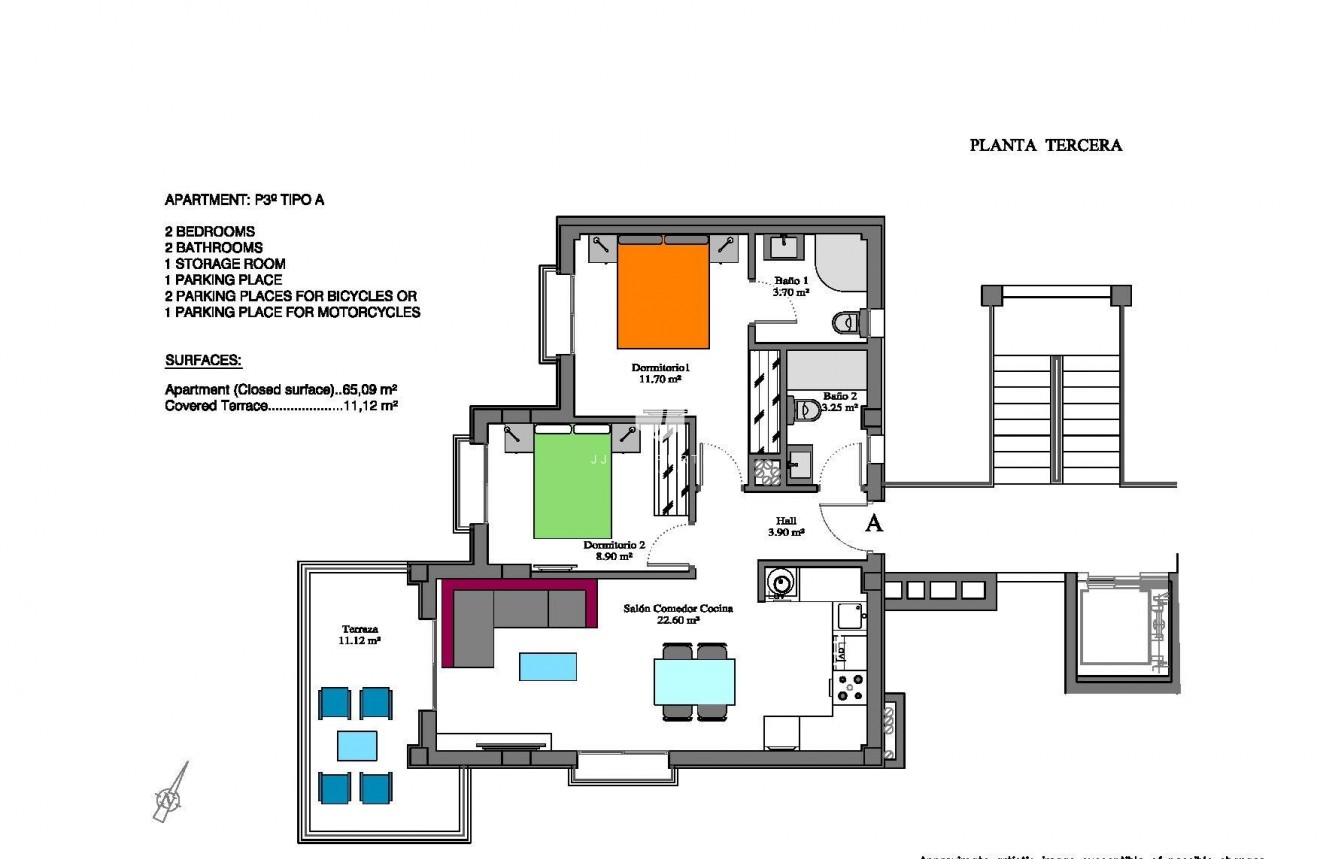
Prachtig appartement tussen de zee en de golf! Gezellig appartement met 2 slaapkamers en 2 badkamers De residentie is gelegen in een rustige en veilige omgeving en is van alle gemakken voorzien (het heeft alle mogelijke comfort). In de directe omgeving vindt u oa 4 schitterende golfbanen, een groot winkelgebied (la Zenia Boulevard), diverse stranden, supermarkten, bars en restaurants, etc. Het is een luxe verblijf, alle appartementen en huizen zijn ruim en comfortabel. De residentie heeft een eigen parkeerplaats en is voorzien van liften. In het complex is er een gemeenschappelijk zwembad (groot zwembad, kinderbad en jacuzzi met warm water). Ook een speeltuin en diverse groenvoorzieningen. Kortom: de ideale plek om uit te rusten en te genieten van de regio, om in Spanje te wonen. 270
Deze informatie is hier onderhevig aan fouten en maakt geen deel uit van een contract. De aanbieding kan zonder kennisgeving worden gewijzigd of ingetrokken. Prijzen zijn exclusief aankoopkosten.
Telefoon
Mobiel
Allereerst bedankt dat je contact met ons hebt opgenomen.
We hebben uw verzoek met betrekking tot de eigenschap referentie ontvangen:NB-42982. Een van onze agenten neemt zo snel mogelijk contact met u op.
Allereerst bedankt dat je contact met ons hebt opgenomen.
We hebben een aanvraag voor een rapport ontvangen als u de prijs van het onroerend goed met de referentie verlaagt: NB-42982
Bekijk in de tussentijd eens een selectie van vergelijkbare woningen die voor u van belang kunnen zijn: