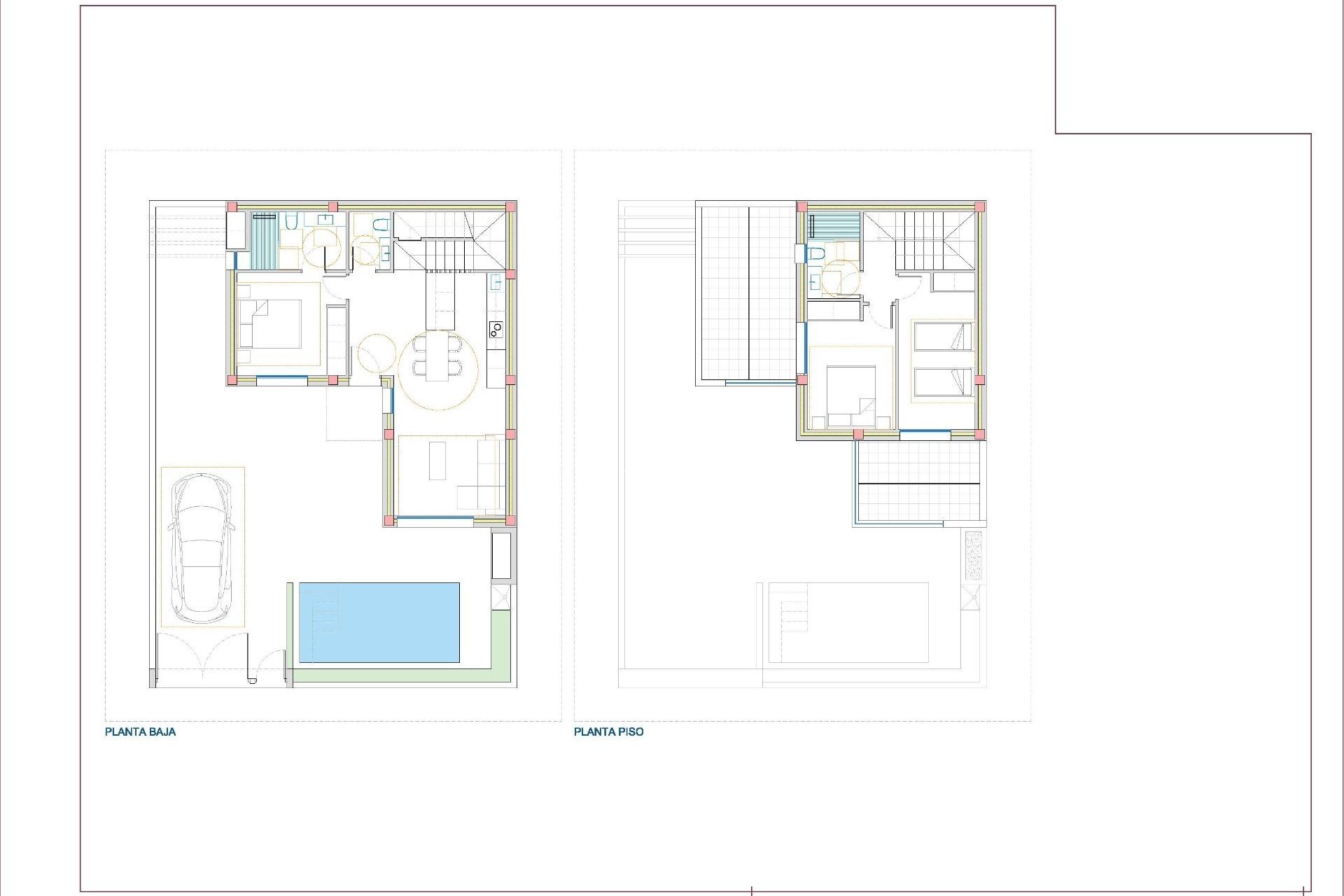
New Build Villas in San Fulgencio with Private Pool and Modern Design Exclusive development of 7 detached south-facing villas on the Costa Blanca Discover this attractive development of 7 modern detached villas in San Fulgencio, a charming municipality in the province of Alicante. Designed in a contemporary style and south-facing to maximise natural light, these homes combine comfort, quality and an ideal location on the southern Costa Blanca. Functional layout and outdoor spaces The villas are spread over two floors and offer an excellent interior layout: 3 spacious bedrooms, one of them on the ground floor 2 full bathrooms and 1 additional toilet Fully furnished open-plan kitchen with appliances included Bright living room with access to the outside Outside, each property has: A 3x5 metre private swimming pool Parking within the plot Two open terraces on the upper floor, ideal for enjoying the sun all day long Superior qualities and energy efficiency The villas are built with high-end materials and focused on sustainability: Electric blinds Exterior carpentry with double glazing Aerothermal system for hot water Pre-installation for ducted air conditioning Bathrooms fitted with furniture, screens and mirrors Strategic location in San Fulgencio San Fulgencio offers the tranquillity of a residential environment with all amenities close at hand, such as restaurants, supermarkets, pharmacies and more. In addition, its excellent location allows easy access to the main points of interest in the area: La Marina Beach – 7 km Guardamar del Segura – 10 km La Marquesa Golf Course (Ciudad Quesada) – 6 km Torrevieja town centre – 18 km Alicante-Elche International Airport – 30 km Ideal for living, investing or enjoying holidays These villas represent a unique opportunity for both permanent residence and property investment in one of the most sought-after areas of the southern Costa Blanca. Whether you want to enjoy the Mediterranean sun or as a second home, this project offers quality, design and an excellent location. Contact us today for more information or to schedule your visit and discover your new home in San Fulgencio. 270