Torrevieja · Los Balcones Bungalow · Obra nueva · #NB-12160

Torrevieja · Los Balcones Bungalow · Obra nueva · #NB-12160

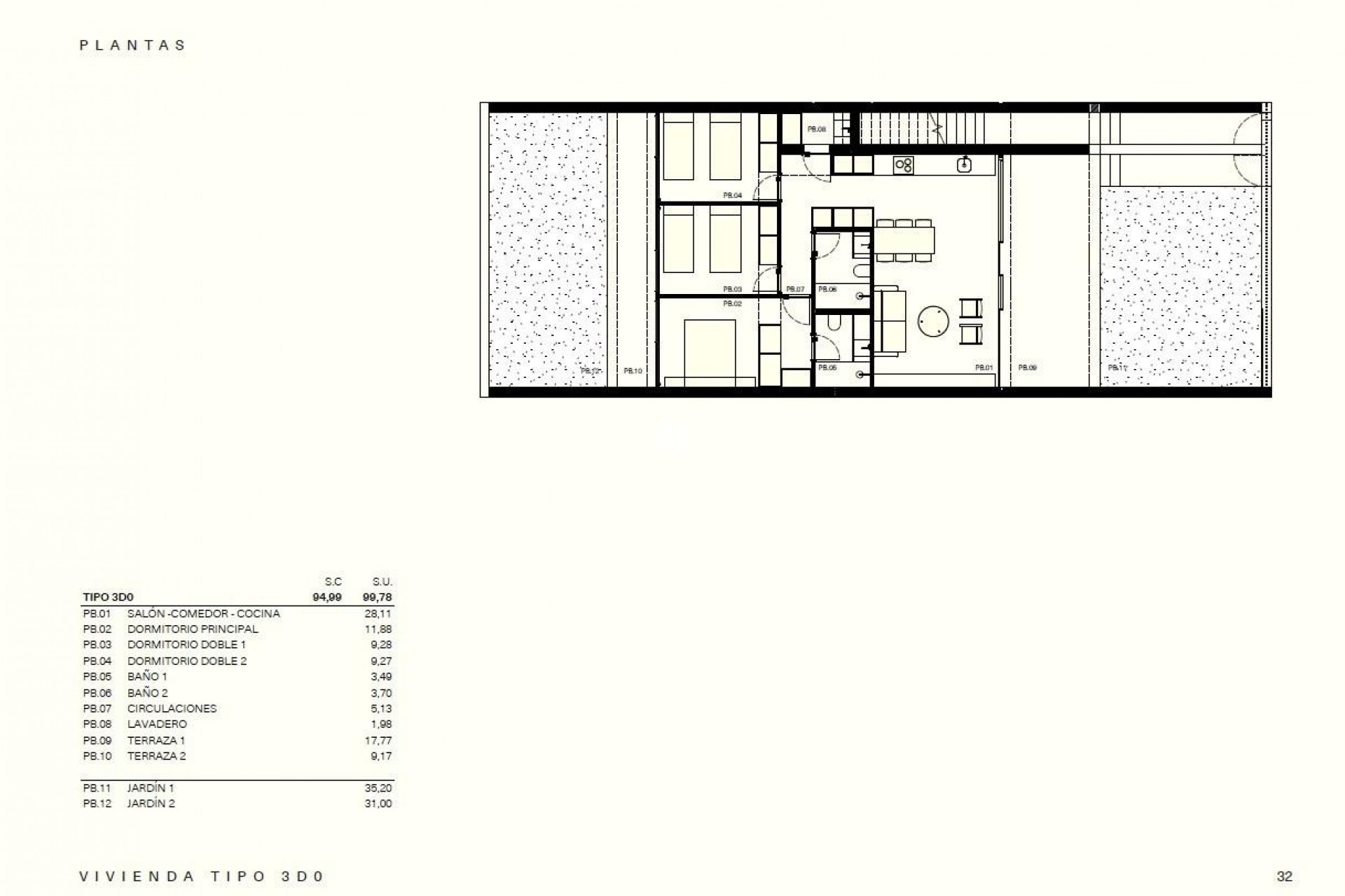
  • Metros
    99m2
  • Terreno
    76m2
  • Habitaciones
    3
  • Baños
    2
  • Piscina

Descripción

Características

Habitaciones: 3
Baños: 2
Construidos: 99m2
Parcela: 76m2
Piscina:
Calificación energética: B
Garden
Gated
Number of Parking Spaces: 1
Near Golf / Golf Resort Property
Near Schools
Near Commercial Center
Air Conditioning: Pre-Installed
Double Bedrooms: 3
Communal Pool
Location: Coastal, Urbanisation
Beach: 3500 Meters
Useable Build Space: 94 Msq.
Terrace: 27 Msq.
Parking - Space
Storage / Trastero

Localización

JJ Properties Logo

Pedir información

Responsable del tratamiento: Jose Joaquín García López, Finalidad del tratamiento: Gestión y control de los servicios ofrecidos a través de la página Web de Servicios inmobiliarios, Envío de información a traves de newsletter y otros, Legitimación: Por consentimiento, Destinatarios: No se cederan los datos, salvo para elaborar contabilidad, Derechos de las personas interesadas: Acceder, rectificar y suprimir los datos, solicitar la portabilidad de los mismos, oponerse altratamiento y solicitar la limitación de éste, Procedencia de los datos: El Propio interesado, Información Adicional: Puede consultarse la información adicional y detallada sobre protección de datos Aquí.

Ver todas las propiedades

WhatsApp