Torrevieja · Los Balcones Bungalow · Nowy budynek · #NB-12160

Torrevieja · Los Balcones Bungalow · Nowy budynek · #NB-12160

  • Metry
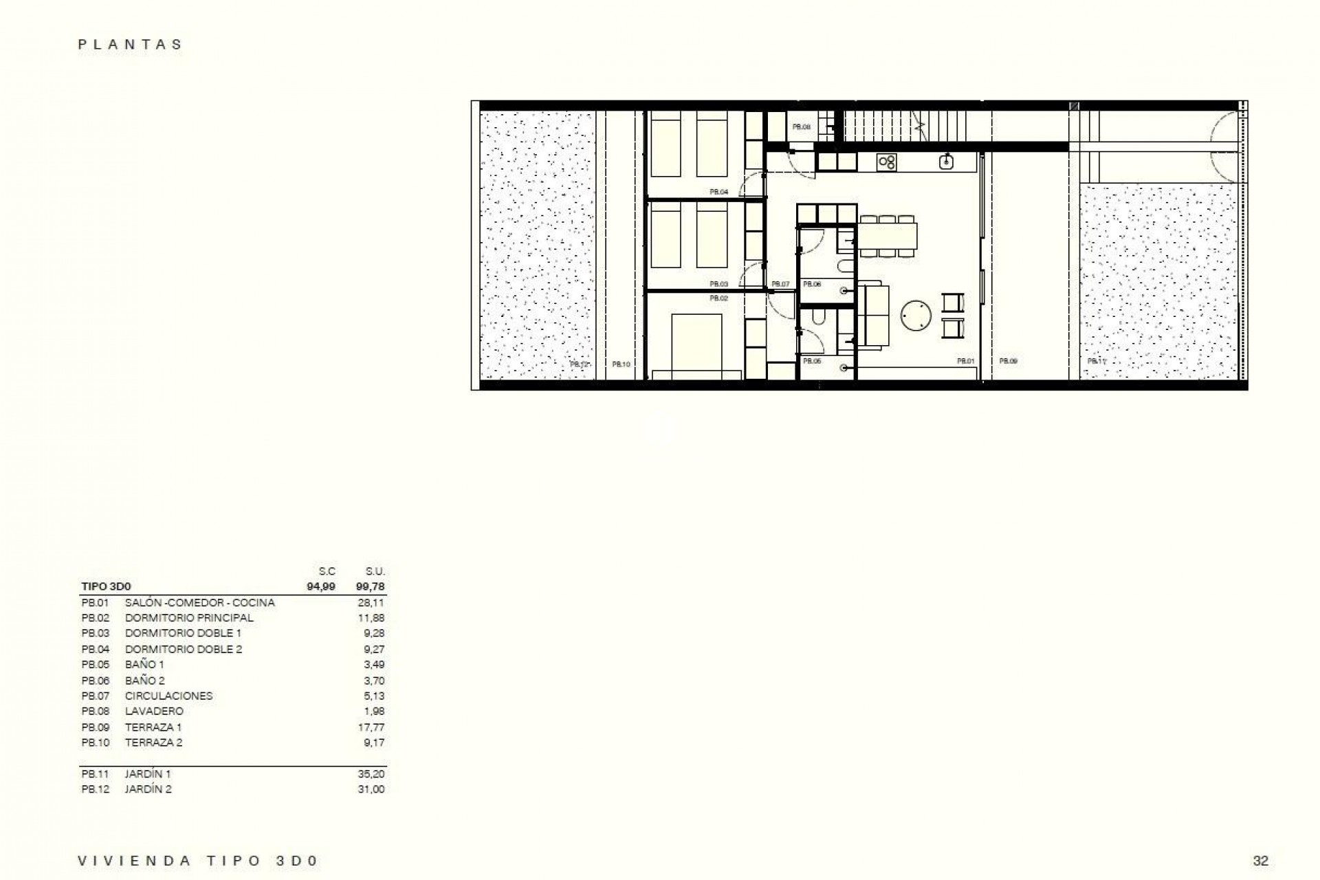
    99m2
  • Grunt
    76m2
  • Sypialnie
    3
  • Łazienki
    2
  • Basen
    Tak

Opis

Szczegóły oferty

Sypialnie: 3
Łazienki: 2
Powierzchnia: 99m2
Działka: 76m2
Basen: Tak
Ocena energetyczna: B
Storage / Trastero
Garden
Gated
Number of Parking Spaces: 1
Near Golf / Golf Resort Property
Near Schools
Near Commercial Center
Air Conditioning: Pre-Installed
Double Bedrooms: 3
Communal Pool
Location: Coastal, Urbanisation
Beach: 3500 Meters
Useable Build Space: 94 Msq.
Terrace: 27 Msq.
Parking - Space

Lokalizacja

JJ Properties Logo

Zapytaj o info

Responsable del tratamiento: Jose Joaquín García López, Finalidad del tratamiento: Gestión y control de los servicios ofrecidos a través de la página Web de Servicios inmobiliarios, Envío de información a traves de newsletter y otros, Legitimación: Por consentimiento, Destinatarios: No se cederan los datos, salvo para elaborar contabilidad, Derechos de las personas interesadas: Acceder, rectificar y suprimir los datos, solicitar la portabilidad de los mismos, oponerse altratamiento y solicitar la limitación de éste, Procedencia de los datos: El Propio interesado, Información Adicional: Puede consultarse la información adicional y detallada sobre protección de datos Aquí.

Wyświetl wszystkie nieruchomości

WhatsApp