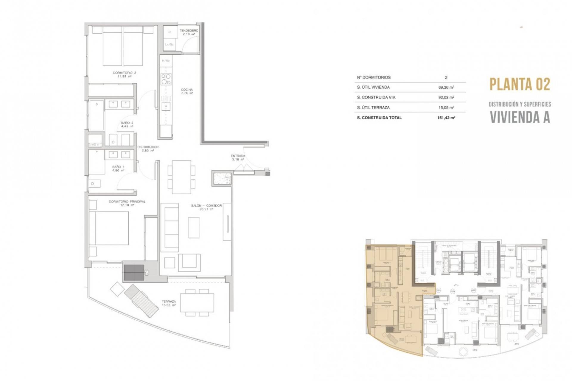
APARTAMENTOS DE LUJO FRENTE AL MAR EN BENIDORM~ ~ Exclusivo residencial de lujo de nueva construcción y llave en mano en primera línea de playa de Poniente, Benidorm.~ ~ Residencial de lujo con diseño y calidades únicas, se compone de 39 viviendas de 2, 3 y 4 dormitorios distribuidas en 20 plantas. ~ Todas las viviendas disponen de amplias terrazas con increíbles vistas al mar, plaza de garaje subterránea y trastero.~ ~ Apartamentos situados junto al histórico Gran Hotel Delfín, en uno de los enclaves más privilegiados del Mediterráneo: primera línea de la Playa de Poniente de Benidorm. Con un diseño espectacular, creando un efecto de gran luminosidad, priorizando la eficiencia energética y la sostenibilidad.~ ~ El edificio no se sitúa al borde del mar como la mayoría de los edificios de Benidorm, sino que se retranquea para crear una gran plataforma vegetal que, junto con la gran piscina infinita, consigue fundirse con el horizonte creando un gran espacio infinito con el mar Mediterráneo.~ ~ Su diseño y construcción están enfocados a un estilo de vida totalmente sostenible que apuesta por la máxima eficiencia energética. Todo este esfuerzo permite a este residencial obtener la certificación "LEED Gold" emitida por el United States Green Building Council. Cuenta con un altísimo nivel de acabados con una cuidada selección de materiales, una piscina infinita con una superficie de 350m2, por encima del nivel de la calle, para disfrutar de vistas ininterrumpidas al mar a la vez que se consigue una mayor privacidad. Los propietarios también dispondrán de gimnasio, pista de pádel, piscina climatizada con Club Social en las plantas 19 y 20, zonas ajardinadas con más de 3000 m2.~ ~ ~ Benidorm situado en el centro de la comarca de La Marina Baixa, es la popular localidad española de Benidorm, uno de los principales destinos turísticos de la Costa Blanca. Sus excelentes playas, su amplia variedad de alojamientos, restaurantes y numerosas actividades de ocio.~ ~ Benidorm ofrece un sinfín de posibilidades: desde pasear por el paseo marítimo, bañarse en sus aguas cristalinas, practicar deportes acuáticos, hacer una excursión en barco a la isla de Tabarca, o pasear por el casco histórico de Benidorm, encaramado en un promontorio, el casco antiguo contrasta con las amplias avenidas de la principal ciudad turística.~ ~ Sus playas de arena fina, sus aguas cristalinas, su clima privilegiado y sus grandes infraestructuras han dado a Benidorm su merecida fama, dotada también de una gran infraestructura de servicios de alta calidad.~ ~ Hay numerosos campos de golf de campeonato en Benidorm y sus alrededores que ofrecen un buen reto tanto al golfista serio como al casual.~ ~ El aeropuerto de Alicante se encuentra a 60 km.~