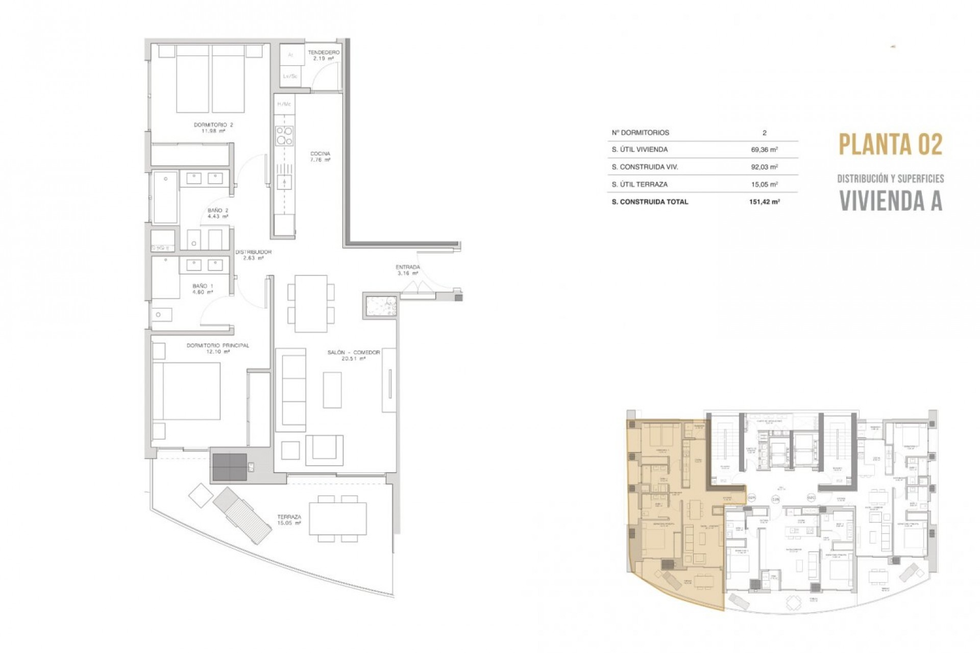
LUKSUSOWE APARTAMENTY NAD BRZEGIEM MORZA W BENIDORMIE~ ~ Unikalne New Build Luxury Key Ready mieszkalnych na Poniente beachfront, Benidorm.~ ~ Luksusowy budynek mieszkalny o unikalnym wzornictwie i właściwościach, składa się z 39 domów z 2, 3 i 4 sypialniami rozmieszczonymi na 20 piętrach. ~ Wszystkie apartamenty posiadają duże tarasy z niesamowitym widokiem na morze, podziemny parking i magazyn.~ ~ Apartamenty położone obok historycznego Gran Hotelu Delfín, w jednej z najbardziej uprzywilejowanych enklaw w basenie Morza Śródziemnego: pierwsza linia na plaży Poniente w Benidormie. O spektakularnym projekcie, tworzącym efekt wielkiej lekkości, stawiającym na efektywność energetyczną i zrównoważony rozwój.~ ~ Budynek nie znajduje się na brzegu morza, jak większość budynków w Benidormie, ale jest cofnięty, aby stworzyć dużą platformę roślinną, która wraz z dużym basenem infinity, udaje się połączyć z horyzontem tworząc dużą nieskończoną przestrzeń z Morzem Śródziemnym.~ ~ Jego projekt i budowa koncentrują się na całkowicie zrównoważonym stylu życia, który jest zaangażowany w maksymalną wydajność energetyczną. Wszystkie te wysiłki pozwalają na to, aby ten mieszkaniowy uzyskać certyfikat "LEED Gold" wydany przez United States Green Building Council. Posiada bardzo wysoki poziom wykończenia ze starannym doborem materiałów, basen infinity o powierzchni 350m2, powyżej poziomu ulicy, aby cieszyć się niezakłóconym widokiem na morze, osiągając jednocześnie większą prywatność. Do dyspozycji właścicieli będzie również siłownia, kort do tenisa paddle, podgrzewany basen z Social Club na piętrach 19 i 20, tereny ogrodowe o powierzchni ponad 3000 m2.~ ~ ~ Benidorm położony w centrum regionu La Marina Baixa, to popularny hiszpański kurort Benidorm, jeden z głównych ośrodków turystycznych wzdłuż Costa Blanca. Jego doskonałe plaże, szeroki wybór zakwaterowania, restauracji i wielu zajęć rekreacyjnych.~ ~ Benidorm oferuje nieskończone możliwości: od spaceru wzdłuż promenady, pływanie w krystalicznie czystych wodach, sporty wodne, wycieczka statkiem na wyspę Tabarca, lub wędrówka po zabytkowej dzielnicy Benidormu, położonej na cyplu, stare miasto jest w wielkim kontraście do szerokich alei głównego miasta turystycznego.~ ~ Dzięki swoim piaszczystym plażom, krystalicznej wodzie, uprzywilejowanemu klimatowi i wspaniałej infrastrukturze, Benidorm zyskał zasłużoną sławę.~ ~ W Benidormie i jego okolicach znajdują się liczne pola golfowe o randze mistrzowskiej, które stanowią dobre wyzwanie zarówno dla poważnych, jak i przypadkowych golfistów.~ ~ Lotnisko w Alicante znajduje się w odległości 60 km.~